




Marknadsför dina lokaler utan kostnad
Marknadsför dina lokaler utan kostnad
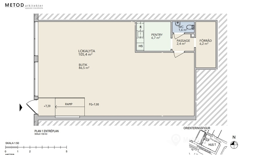
Affär, 105 m2, Nymärsta Gränd 5, Märsta
Mindre butikslokal i Märsta Centrum
Bra läge i centrum med bra fottrafik
Beskrivning
Här har du möjlighet att etablera din verksamhet i en butikslokal med ett perfekt läge, stora fönsterpartier som ger goda exponeringsmöjligheter. Mindre lager med förvaringsmöjligheter, samt ett fullutrustat personalrum gör denna lokal till en komplett lösning för butiksverksamhet. Dina största grannar inkluderar bland annat ICA, Systembolaget, Biblioteket, H&M, Lindex mm.
Kommunikationer
Märsta är centralort i Sigtuna kommun och ligger nästan mitt emellan Stockholm och Uppsala, med direkt närhet till E4:an. Restid till Stockholm med bil är cirka 35 minuter, till Uppsala cirka 30 minuter och till Arlanda cirka 10 minuter. Från Märsta station går pendeltåg till Stockholms centralstation. Även fjärrtågen mellan Stockholm och Uppsala stannar i Märsta. Bra bussförbindelser finns till Sigtuna, Valsta, Steningehöjden och Arlanda. Gångavstånd från Märsta station till Märsta Centrum. Buss trafikerar sträckan och tar ett par minuter. Samtliga större busslinjer passerar dessutom Märsta C.
Bussarna trafikerar området runt butiken och den närmaste busshållplatsen ligger bara 1 bort. Det finns gott om shoppingmöjligheter här, snabbköpet ligger nämligen bara 109 m bort. Butiken har ett gynnsamt läge. Fitnesscentret, som finns på 434 m avstånd, är en av dess fördelar. Det tar inte mer än 6 att nå apoteket från den här butiken.
Basic
Den här butiken är liten i storleken och täcker 105.0 kvm. Sigtuna - området där butiken ligger - korsas av stadens centrala handelsvägar. Fyll i formuläret och ställ frågor om att hyra en butik på Nymärsta Gränd 5, i Sigtuna, 195 30 direkt till hyresvärden. Fyll i formuläret för att få mer information om butiken. Fastighetsägaren kommer att svara på dina frågor så snart som möjligt.
Beläget 635 m från stadens centrum är butiken på Nymärsta Gränd 5 en källa till en stadig kundtillströmning. Det är ganska vanligt att Märsta, med sina 24068 invånare, ständigt behöver fler försäljningsställen. Området runt sjö - 580 m från butiken - är en av invånarnas favoritrekreationsplatser. Att göra din butiks plats till en konkurrensfördel är inte svårt med det livliga park i din närhet. Butiken ligger 165 m från Märstaån där många potentiella kunder promenerar förbi dagligen.

Har du inte hittat den rätta lokalen ännu?
Skapa en sökagent och bli den första att informeras om nya hyresobjekt.
Det ser ut som sidan med favoriten lokaler är full. Ta bort irrelevanta hyresavtal från sidan för att lägga till nya.
Det ser ut som sidan med favoriten lokaler är full. Ta bort irrelevanta hyresavtal från sidan för att lägga till nya.
Det ser ut som sidan med favoriten lokaler är full. Ta bort irrelevanta hyresavtal från sidan för att lägga till nya.
Det ser ut som sidan med favoriten lokaler är full. Ta bort irrelevanta hyresavtal från sidan för att lägga till nya.
Det ser ut som sidan med favoriten lokaler är full. Ta bort irrelevanta hyresavtal från sidan för att lägga till nya.
Det ser ut som sidan med favoriten lokaler är full. Ta bort irrelevanta hyresavtal från sidan för att lägga till nya.
Det ser ut som sidan med favoriten lokaler är full. Ta bort irrelevanta hyresavtal från sidan för att lägga till nya.
Det ser ut som sidan med favoriten lokaler är full. Ta bort irrelevanta hyresavtal från sidan för att lägga till nya.
Det ser ut som sidan med favoriten lokaler är full. Ta bort irrelevanta hyresavtal från sidan för att lägga till nya.