
Marknadsför dina lokaler utan kostnad
Marknadsför dina lokaler utan kostnad
Effektiva produktionsytor!
Högkvalitativa produktionsytor samt lager. Samtliga produktionsytor har ESD golv. Produktionsytorna har ca: 3,5 m till undertak.
Byggnadernas utformning ger stora möjligheter till anpassning, ytornas användning kan förändras allt efter intressenters nuvarande och framtida behov. Inre skalskydd runt egna lokaler anpassas enligt överenskommelse.
Byggnaden har idag hyresgäster som bla. Inresol och Byggnadsautomation.
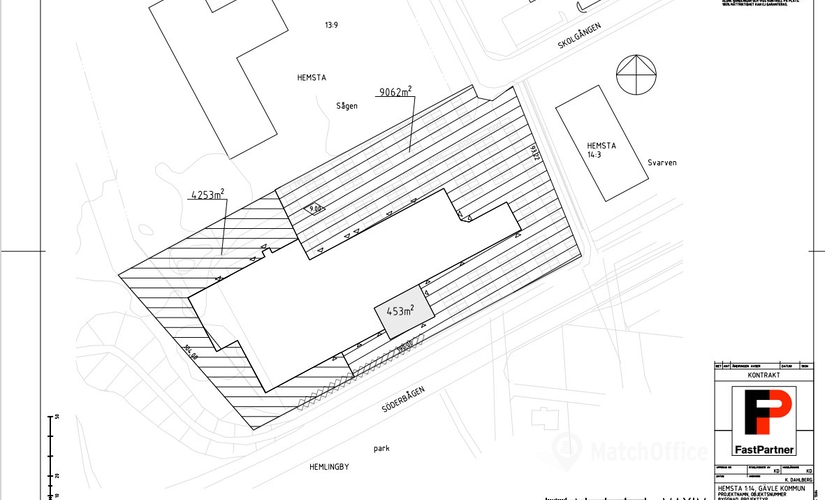
Fastigheten ligger ca 2 km söder om Gävle centrum direkt vid E4:ans södra infart till Gävle. Det är lätt att komma till fastigheten då det finns infart på tre sidor av fastigheten från angränsande vägnät.
Fastigheten har idag hyresgäster så som Gavlegårdarna, Må Bättre, Inresol, Byggnadsautomation, Hermods Vuxenutbildning, DOME Sportzone
Det finns restauranger, livsmedelsaffär och aktiv handel i området. 10 min till Hemlingby Friluftsområde med löpspår och slalombacke.
Bussförbindelse i direkt anslutning till fastigheten, finns hållplatser på två sidor om fastigheten. Cykelbana direkt till Gävle Centrum. Goda parkeringsmöjligheten för lättare tillgänlighet för både gäster och personal.
Basic
Har du inte hittat den rätta lokalen ännu?
Skapa en sökagent och bli den första att informeras om nya hyresobjekt.
Det ser ut som sidan med favoriten lokaler är full. Ta bort irrelevanta hyresavtal från sidan för att lägga till nya.
Det ser ut som sidan med favoriten lokaler är full. Ta bort irrelevanta hyresavtal från sidan för att lägga till nya.